
设备简介
防火幕是剧院必备的安全设备,通常设置在舞台台口处,在火灾情况下可迅速封闭台口,隔离舞台与观众
厅或舞台以外的区域,起到防止火灾蔓延的作用。防火幕幕体为刚性结构,是通过卷扬方式垂直升降的设备。
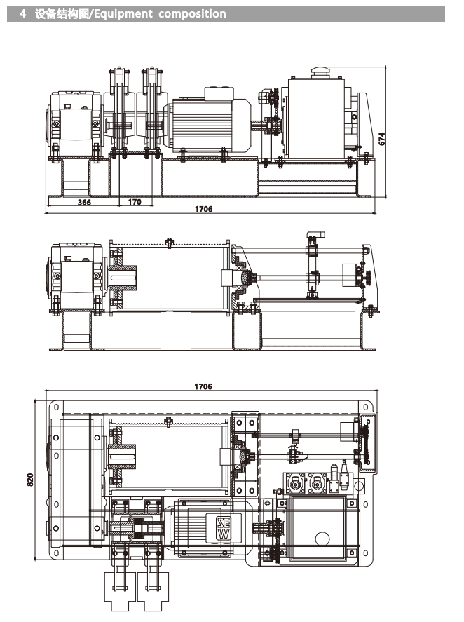
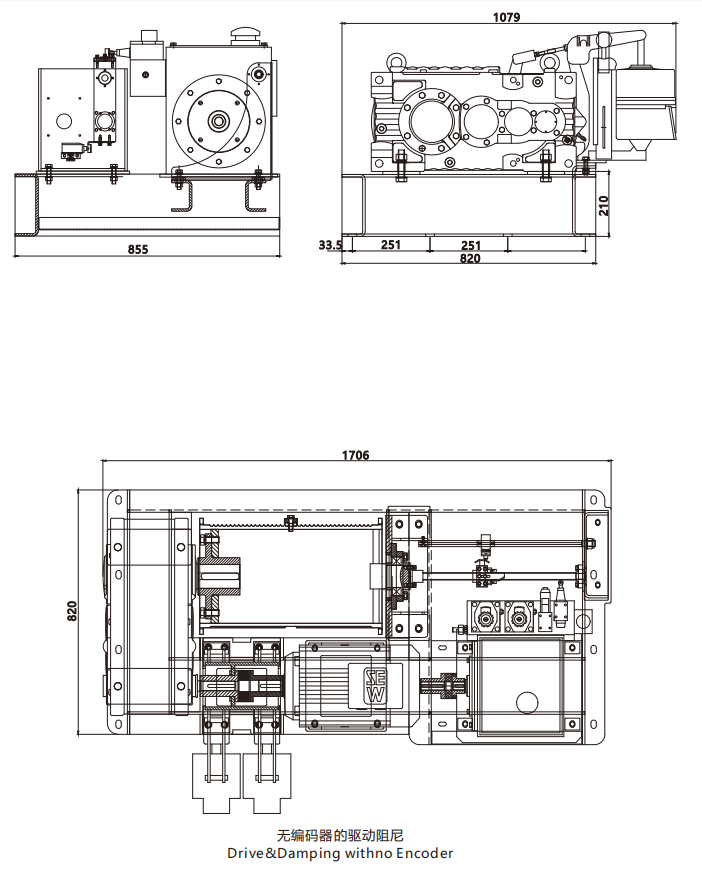
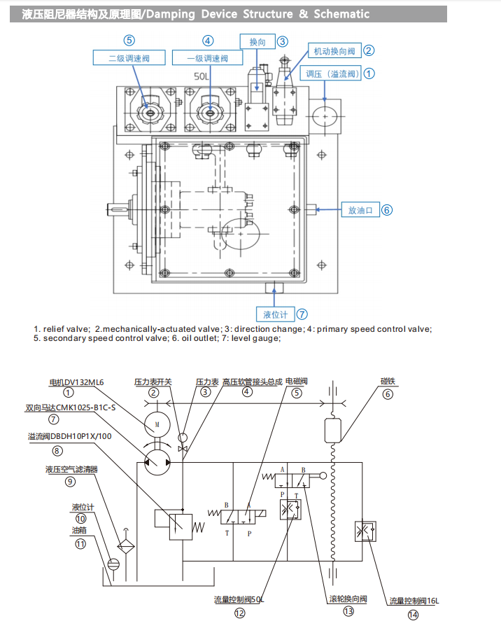
本产品为防火隔离幕驱动阻尼,是整个防火幕系统的重要组成部分。














设备简介
防火幕是剧院必备的安全设备,通常设置在舞台台口处,在火灾情况下可迅速封闭台口,隔离舞台与观众
厅或舞台以外的区域,起到防止火灾蔓延的作用。防火幕幕体为刚性结构,是通过卷扬方式垂直升降的设备。
本产品为防火隔离幕驱动阻尼,是整个防火幕系统的重要组成部分。












